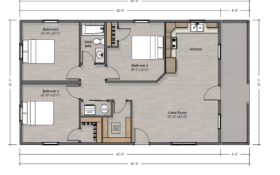
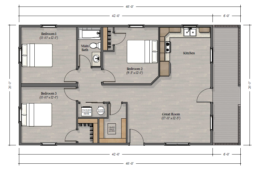
This layout allows for maximum use of floor space by avoiding hallways. Combining the great room and kitchen areas, along with the vaulted ceiling, makes for a comfortable central gathering space.
Having the porch on the wider side of the Yellowstone Cabin allows for plenty of windows to enjoy the view from your dream cabin!










