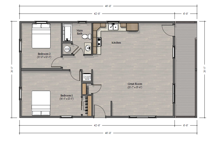
Stillwater 26x48B Floor Plan

Stillwater Cabin

SW2648B

  • 2 Bedroom
  • 1 Bathroom
  • 1092 Square Feet of Living Space
  • 26'x48'

Every Riverside Cabin has vaulted ceilings for that open feeling. The Stillwater Cabin continues this openness from the living room to the full- width gable end porch.

The bedrooms in this model are all on the same end of the cabin with the great room and deck on the other end.

  • 40-year tuff rib metal
  • R21 Closed Cell Foam insulation in exterior walls
  • R60 blown in Cellulose insulation in attic
  • Standard 4:12 roof pitch
  • Engineered trusses

Click here to see more!

  • LP SmartSide Siding
  • Vented Soffit and Ridge
  • Composite Decking
  • Waudena Exterior Doors
  • Variety of Pine Wall Finishes
  • PELLA Windows
  • Rustic Hickory Cabinets
  • Laminate Countertops
  • Electric Baseboard Heat with Wall Thermostat