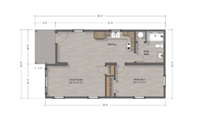
If the front of your cabin is your presentation point, make sure to take a good look at the Bitterroot Cabin. It’s 6’ deep porch creates an attractive double gable front entrance.
With plenty of windows, hickory kitchen cabinets, and roomy bedrooms, this cabin is as functional as it is good looking.










