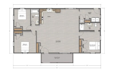
This layout allows for maximum use of floor space by avoiding hallways. Combining the great room and kitchen areas, along with the vaulted ceiling, makes for a comfortable central gathering space.
The master bedroom and bathroom is on the opposite side of the other bedrooms for more privacy.










