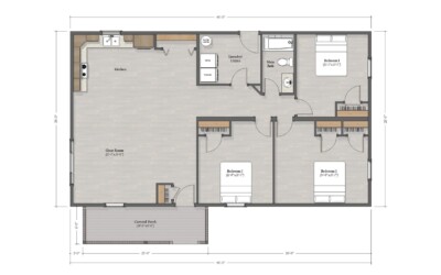
This layout has all the bedrooms on one side of the cabin and your kitchen and living room on the other. The master bedroom has his & hers closets.
Yellowstone Cabin
YS2848B
- 3 Bedroom
- 1 Bathroom
- 1344 Square Feet of Living Space
- 28'x48'
- 40-year metal roof
- R21 Closed Cell Foam insulation in exterior walls
- R60 blown in Cellulose insulation in attic
- Standard 4:12 roof pitch
- Engineered trusses
Click here to see more!
- LP SmartSide Siding
- Vented Soffit and Ridge
- 40-year Tuff Rib Metal
- Composite Decking
- Waudena Exterior Doors
- Variety of Pine Wall Finishes
- PELLA Windows
- Rustic Hickory Cabinets
- Laminate Countertops
- Electric Baseboard Heat with Wall Thermostat










