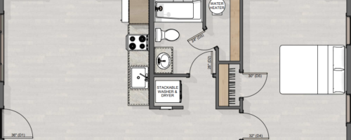
the Yaak puts a modern twist on the traditional style cabin. It’s perfect for a weekend getaway, hunting trip, or even a mothers-in-law quarters. Being only 16′ wide, the Yaak can fit in the tiniest of spaces and is our most economical model to date.
The cabin has 1 bedroom, 1 bathroom, and an open concept kitchen and great room with the option to add a second bedroom with a longer floor plan.
It is designed and required to be set on a crawl space foundation.



















