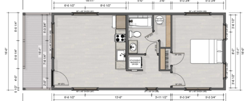
Madison 16×42

The Madison

1642

  • 1 Bedroom
  • 1 Bathroom
  • 672 Square Feet
  • 16'x42'

The Madison is a smaller version of our traditional Riverside Cabin, while still having all the same amazing features. With a 6-foot covered front porch, and vaulted interior ceilings, the Madison cabin is the perfect addition for your piece of land.

The cabin has 1 bedroom, 1 bathroom, and an open concept kitchen and great room with the option to add a second bedroom with a longer floor plan. With our 16′ units, you have the option of sheetrock or pine on the interior.

It is designed and required to be set on a crawl space foundation. The floor plans are set plans and no alterations can be made to the plan itself, though you will be able to customize your colors for the exterior and interior!

  • 40-year tuff rib metal
  • R21 Closed Cell Foam insulation in exterior walls
  • R60 blown in Cellulose insulation in attic
  • Engineered trusses
  • LP SmartSide Siding
  • Vented Soffit and Ridge
  • 40-year Tuff Rib Metal
  • Composite Decking
  • Waudena Exterior Doors
  • Variety of Pine Wall Finishes
  • Provia Windows
  • Rustic Hickory Cabinets
  • Laminate Countertops
  • Electric Baseboard Heat with Wall Thermostat